Email: sales@cadssurveys.co.uk
Telephone: 01493 440444
Cemetery & Crematorium, City of London

Key Metrics
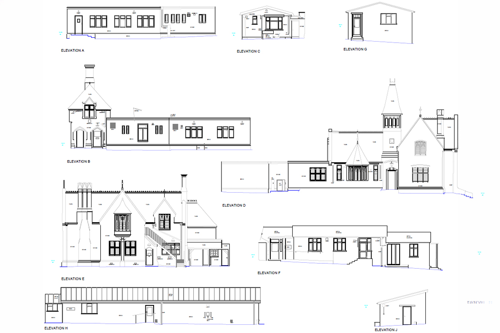
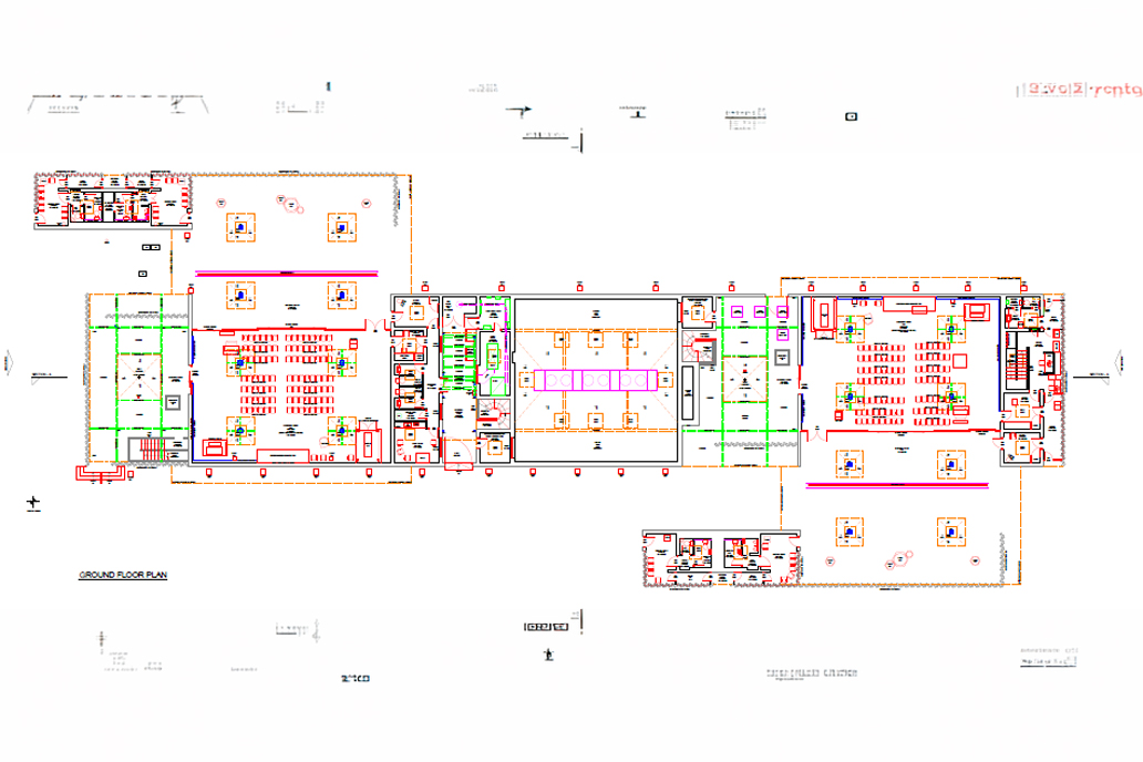
- 14 floor plans and 48 External elevations of the various buildings
- All captured using the Trimble X7 laser scanner
- 3-week turnaround for 3 people
- 2D deliverables - plan of each floor, roof plan, external elevations and one section through building
Cemetery Heritage Surveys & Elevation Data
Opened in 1856 in Manor Park, the Cemetery & Crematorium, City of London, was created to address overcrowded churchyards during the Industrial Revolution. Designed by William Haywood, the site features grand chapels, catacombs, landscaped avenues, and historic and modern crematoriums. The cemetery is actively evolving through modernisation, heritage conservation, and sustainable expansion of burial areas.
CADS Surveys captured precise site data for every building with a measured survey, producing existing 2D plans and elevations to support heritage conservation, estate management, maintenance planning, and sensitive refurbishment. Working closely with our client MAP Architecture, our survey data supports architects, engineers, and project teams in delivering planning applications, conservation projects, and future development—while preserving the cemetery’s historic character.
Learn more about CADS Surveys external and internal elevation services or see additional projects from CADS Surveys.
Contact us today
Ready to get your project started?
- Call Us
01493 440444 - Email Us
sales@cadssurveys.co.uk - Message Us
Submit an enquiry











