Email: sales@cadssurveys.co.uk
Telephone: 01493 440444
The Clapham Grand Music Hall, London
Key Metrics
- Heritage Measured Building Survey
- 6 floors, varying in size
- 325 Trimble X7 laser scans
- 2528 sqm total area
- 4-week turnaround
- 2D deliverables, External Elevations and Net Internal Floor Area Report
Preserving a Historic Icon to Support its Continued Legacy
The Clapham Grand, opened in 1900 as a grand music hall, has evolved into a vibrant live arts venue, hosting performers such as Marie Lloyd and Charlie Chaplin. Having survived numerous redevelopment threats, it remains one of London’s last true “Palace of Varieties,” recently celebrating its 125th anniversary.
Today, this Grade II listed theatre in London requires careful consideration for any works, with accurate measured building surveys and CAD deliverables supporting future planning, design, and asset management.
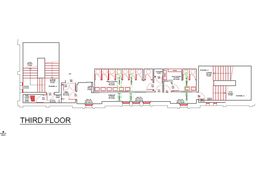
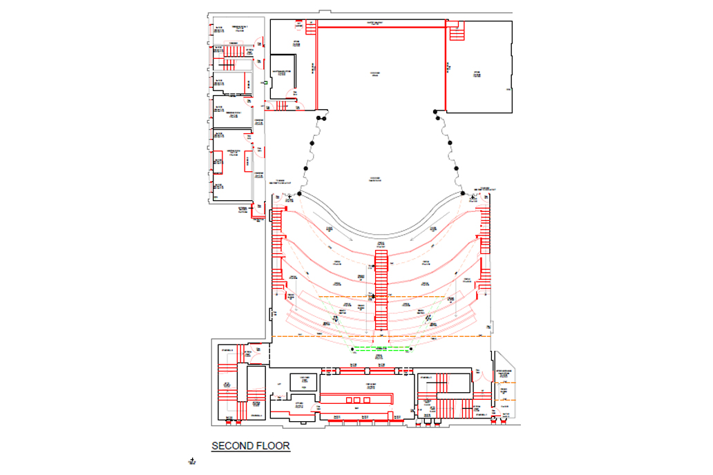
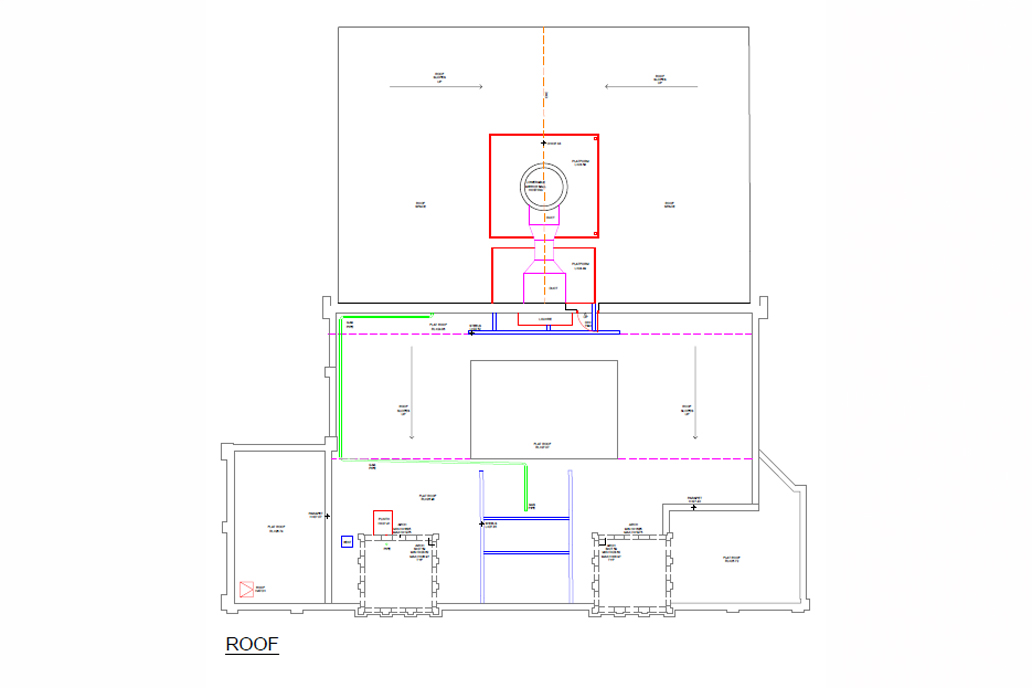
CADS Surveys was commissioned by Landswood de Coy LLP to undertake a full measured building survey of The Clapham Grand, including the main auditorium and dressing rooms. We delivered a complete set of 2D CAD plans and elevations.
Learn more about CADS Surveys’ heritage and external elevation surveys or see additional projects from CADS Surveys.
Contact us todayReady to get your project started?
- Call Us
01493 440444 - Email Us
sales@cadssurveys.co.uk - Message Us
Submit an enquiry